700.000,00
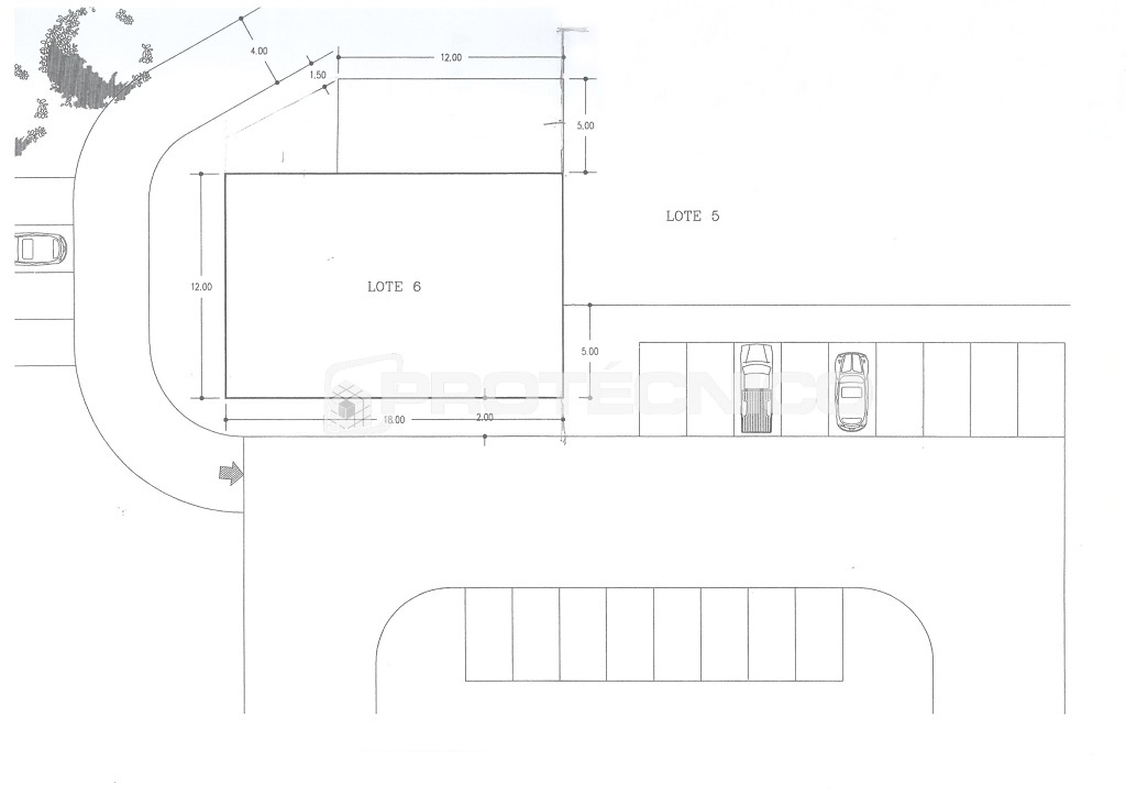
Property size icon Área de Terreno 2393
Property structure icon Natureza Urbano
Property accommodation icon Cert. Energético Isento

Lote p/ construção em altura – Esgueira

Venda
Novembro 04, 2022
72
Referência: 21364
Descrição

Excelente oportunidade de investimento!

Situado na zona de Esgueira, a apenas 5 minutos do centro de Aveiro, com proximidade às principais vias de circulação rodoviária assim como a todo o tipo de serviços, comércio, restauração e lazer.

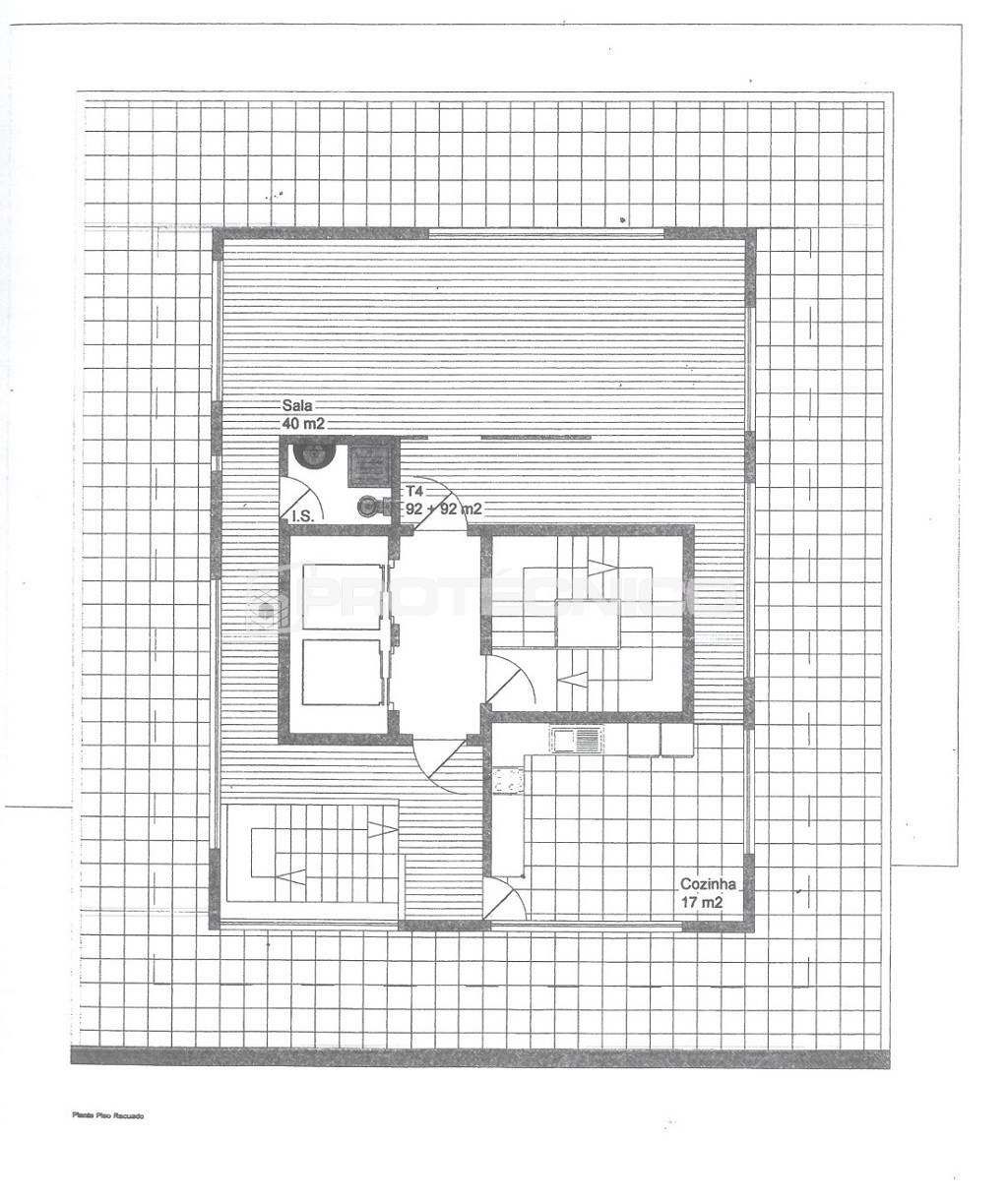
Para si temos um lote com 2.393m2 de área total. Para construção de edifício com 12 frações, composto por 2 pisos inferiores ( -1 e -2), rés do chão, 5 pisos superiores e, ainda, recuado.

Com localização privilegiada, este lote tem tudo o que necessita para fazer um investimento de sucesso.

Não perca mais tempo e venha conhecer este imóvel com a Protécnico.

Detalhes
Property year built icon Natureza Urbano
Property accommodation icon Cert. Energético Isento
Property area size icon Área de Terreno 2393m²
Equipamentos
Auto-Estrada
Bombeiros
Comércio e Serviços
Espaços Comerciais
Espaços Verdes
Farmácias
Iluminação Pública
Parque Infantil
Restauração e Lazer
Transportes Públicos
You don't have permission to register