Moradia T3 Térrea Isolada – Bustos
Descrição
Situado em zona habitacional calma e aprazível da localidade de Bustos, esta poderá ser a oportunidade ideal para si!
Moradia T3 térrea isolada, perfeita para quem valoriza a serenidade, longe do alvoroço citadino, proporcionando o ambiente ideal para momentos únicos em família e com amigos.
Em fase de projeto, oferece-lhe a possibilidade de escolher e personalizar os acabamentos, criando um espaço verdadeiramente à sua medida, com o conforto e o design que melhor refletem o seu estilo de vida.
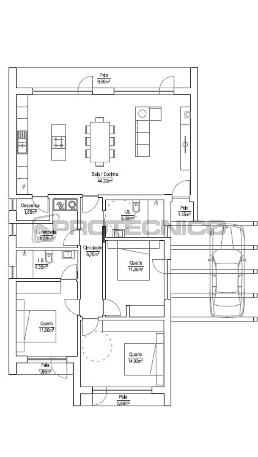
Com cerca de 135m2, inserida num generoso lote de 925m2, esta moradia destaca-se pela abundante luz natural e pelo agradável espaço exterior que conjuga a praticidade, o conforto e o lazer.
Constituída por sala de estar/jantar e cozinha em open space, despensa e lavandaria, hall de circulação que dá acesso às zonas de descanso, 2 quartos com roupeiros embutidos e 1 suite com roupeiros embutidos e wc privativo, 1 wc completo. Junto à entrada terá um carport.
Localização estratégica, a poucos minutos de:
-
A17 – 6 minutos
-
Oliveira do Bairro – 12 minutos
-
Vagos – 15 minutos
-
Aveiro – 18 minutos
-
Praias – 18 minutos
Contate a Protécnico para uma visita ao local ou para informações adicionais.
Venha realizar o seu sonho connosco!




